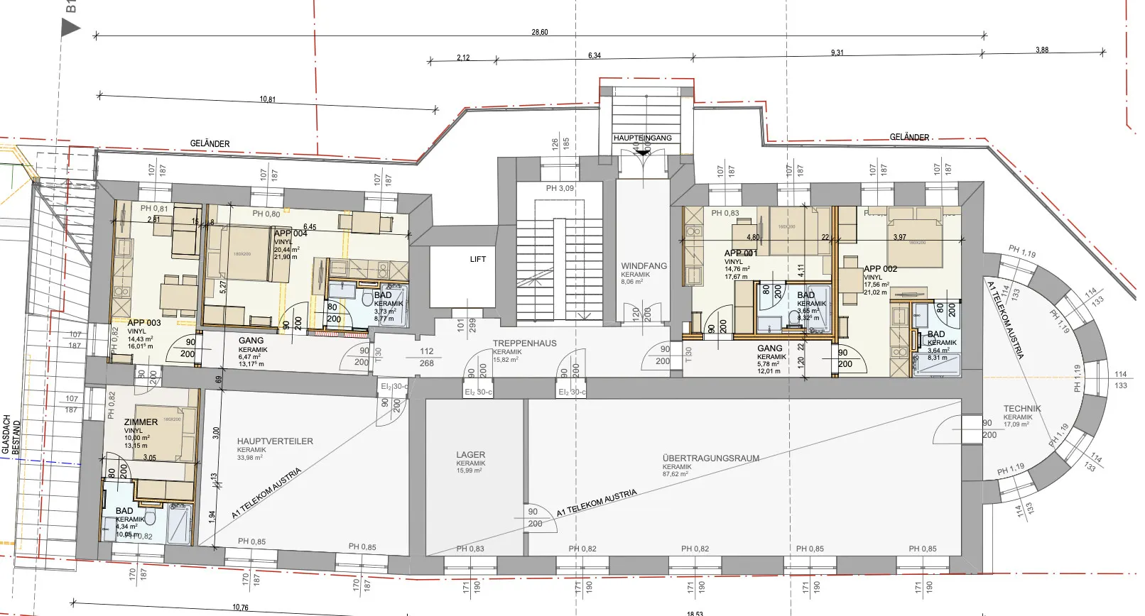
Zum Verkauf steht ein attraktives Renditeobjekt bestehend aus 34 Personal-Studios und einer Gewerbeeinheit im Herzen von Bad Gastein. Es handelt sich jeweils um 1- oder 2-Zimmer Apartments mit einer Größe zwischen 17m² und 35m².
Die Apartments werden inklusive kompletter Ausstattung verkauft und sind Erstbezug nach Sanierung.
Zusätzlich stehen 8 Stellplätze für PKW zur Verfügung.
Für einen Großteil der Einheiten bestehen bereits Vermietungsoptionen.
Die vorhandende Gewerbefläche ist bereits langfristig vermietet.
Alle Angaben laut Eigentümer.
Bad Gastein
Renditeobjekt mit 34 Personalstudios im Herzen von Bad Gastein!
ID: P1058
€
4.850.000,–
Beschreibung
Ausstattung
Zur Ausstattung zählen unter anderem:
- VollausgestatteteKüche: Erstausstattung Geschirr, Töpfe & Co. Vorhänge, Bilder, Couch etc
- Ski& Bikeraum
- Kellerabteile
- Wasch und Trockenraum allgemein
- VollausgestatteteKüche: Erstausstattung Geschirr, Töpfe & Co. Vorhänge, Bilder, Couch etc
- Ski& Bikeraum
- Kellerabteile
- Wasch und Trockenraum allgemein
Lage
Das Objekt befindet sich in zentraler Lage von Bad Gastein. Von dort aus erreicht man fußläufig die meisten Hotels, als auch die örtliche Infrastruktur wie zum Beispiel Nahversorger.
Bad Gastein - das Berlin der Alpen. Ein architektonisches Kleinod der Belle Èpoque. Ein unwiderstehlicher Ort zum Leben und Arbeiten.
In den 50er Jahren lockte die Alpine Ski WM unzählige Be- sucher an, um Skilegende Toni Sailer bei seinen
Erfolgen zu feiern. In den 70ern knüpfte man an die Tradi- tion interessanter Architektur mit dem Bau des Kongress- zentrums, entworfen von Gerhard Garstenauer, an. “Zu- rück in die Zukunft” könnte man heute sagen, wenn man vor dem Bau steht. In den 80ern feierte man Silvester mit Liza Minnelli, gemeinsam mit der restlichen Welt. Die Schauspielerin Christiane Hörbiger hingegen sollte eine Lehre als Zuckerbäckerin machen, in der Konditorei ihrer Eltern, die noch heute besteht.
Aus dem einstigen Kurort ist in den letzten Jahrzehnten ein internationaler Treffpunkt für die Kunst-, Kultur- und Lifestyleszene geworden.
Die Thermalquellen sind seit 1436 wichtiger Bestandteil Bad Gasteins. Das radonhaltige Quellwasser wird aus 18 Thermalquellen gewonnen.
Gerhard Garstenauer entwarf neben dem Kongresszent- rum auch die Felsentherme mit ihrem prachtvollen Aus- blick auf den Stubnerkogel.
Bad Gastein - das Berlin der Alpen. Ein architektonisches Kleinod der Belle Èpoque. Ein unwiderstehlicher Ort zum Leben und Arbeiten.
In den 50er Jahren lockte die Alpine Ski WM unzählige Be- sucher an, um Skilegende Toni Sailer bei seinen
Erfolgen zu feiern. In den 70ern knüpfte man an die Tradi- tion interessanter Architektur mit dem Bau des Kongress- zentrums, entworfen von Gerhard Garstenauer, an. “Zu- rück in die Zukunft” könnte man heute sagen, wenn man vor dem Bau steht. In den 80ern feierte man Silvester mit Liza Minnelli, gemeinsam mit der restlichen Welt. Die Schauspielerin Christiane Hörbiger hingegen sollte eine Lehre als Zuckerbäckerin machen, in der Konditorei ihrer Eltern, die noch heute besteht.
Aus dem einstigen Kurort ist in den letzten Jahrzehnten ein internationaler Treffpunkt für die Kunst-, Kultur- und Lifestyleszene geworden.
Die Thermalquellen sind seit 1436 wichtiger Bestandteil Bad Gasteins. Das radonhaltige Quellwasser wird aus 18 Thermalquellen gewonnen.
Gerhard Garstenauer entwarf neben dem Kongresszent- rum auch die Felsentherme mit ihrem prachtvollen Aus- blick auf den Stubnerkogel.
- 50 Zimmer
- 34 Schlafzimmer
- 34 Bäder
- 8 Stellplätze
- 975 m² Wohnfläche
- 800 m² Grundstücksfläche
- 1389 m² Gesamtfläche
- 414 m² Nutzfläche
Über Mich
Michael Hauser
Was meine Arbeit ausmacht, ist der persönliche Austausch. Ich schätze klare Worte und eine Beratung, die auf Vertrauen basiert. Jede Entscheidung rund um eine Immobilie hat Gewicht – deshalb höre ich genau hin, stelle die entsprechenden Fragen und begleite meine Kunden mit dem Blick fürs Wesentliche. Mir geht es um nachhaltige Lösungen. Um Entscheidungen, die durchdacht sind – und langfristig funktionieren.
Lebens- und Wohnqualität entstehen nicht durch Zufall. Sie sind das Ergebnis von Klarheit, Verantwortung und einem Umfeld, das Möglichkeiten schafft.
Kontakt
Sie suchen das Besondere?
Ich freue mich darauf, Sie persönlich kennenzulernen und Sie zu beraten.